Abitativo - Villa Bi In Vendita, Anguillara Sabazia > Centro
via Anguillarese, snc - 00061 Anguillara Sabazia (Rm)
Codice Incarico 2573/A
Codice Incarico 2573/A
€ 230.000,00
DESCRIZIONE
| Indirizzo | via Anguillarese, snc - 00061 Anguillara Sabazia (Rm) |
|---|---|
| Agenzia | Acropoli S.r.l. |
| Area | Anguillara Sabazia > Centro |
| Anno costruzione | 2007 |
| Condizioni immobile | Buone |
| Stato | Libero-Proprietario |
| Spese condominio | 20.00 |
| Riscaldamento | / |
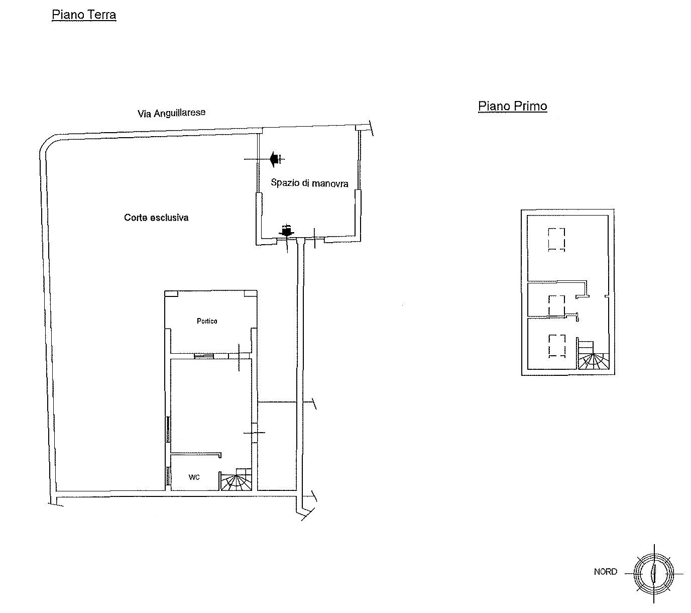
| Composizione | SALONE, CAMERA, CAMERETTA, CUCINA, DOPPI SERVIZI, RIPOSTIGLIO, TERRAZZO (15 MQ COMM.), GIARDINO / CORTE (180 MQ COMM.), BOX AUTO, POSTO AUTO SCOPERTO |
| Mq. coperti comm. | 86 |
| Mq. scoperti comm. | 0 |
| Tipologia | Abitativo - Villa Bi |
| Prezzo Vendita | € 230.000,00 |
| Classe Energetica | G |
| Annuncio | Porzione di Villa Bifamiliare – centro Anguillara Sabazia Centralissimo, in via Anguillarese vicino a tutti i principali servizi proponiamo in vendita porzione di villa bifamiliare sviluppata su due livelli fuori terra. La villa ricopre una superficie interna lorda di 86 mq ed è così suddivisa: - Piano Terra: zona living con camino, con doppio affaccio sul giardino e accesso sul portico verandato, cucina semi abitabile. - Piano Primo: camera matrimoniale, cameretta e bagno. Completa la proprietà giardino di 180 mq e box auto. La villa è in ottime condizioni di manutenzione e non necessita di lavori di ristrutturazione. Vicinanza ai principali punti di interesse: Stazione di Anguillara: 5 minuti a piedi (800 metri) Lago di Bracciano (Anguillara): 3 minuti di auto (3 Km) Lago di Martignano: 7 minuti di auto (4km) Supermercati: 5 minuti a piedi (800 metri) Scuola elementare: 5 minuti a piedi (800 metri) |
| Planimetria |
Planimetria 1 |
|---|
