Abitativo - Appartamento In Vendita, Roma > Osteria Nuova (RM)
via Arquà Petrarca , snc - 00123 Roma (Rm )
Codice Incarico 2571/A
Codice Incarico 2571/A
€ 143.000,00
DESCRIZIONE
| Indirizzo | via Arquà Petrarca , snc - 00123 Roma (Rm ) |
|---|---|
| Agenzia | Acropoli S.r.l. |
| Area | Roma > Osteria Nuova (RM) |
| Anno costruzione | 1994 |
| Condizioni immobile | Discrete |
| Stato | Libero-Vuoto |
| Spese condominio | |
| Riscaldamento | Autonomo |
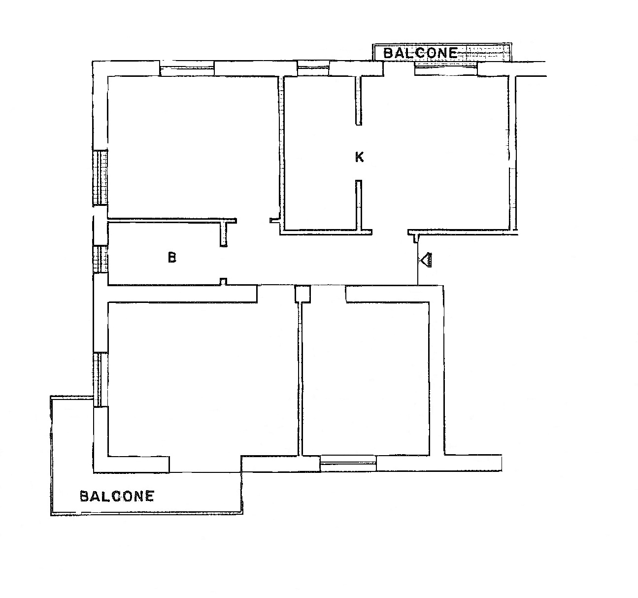
| Composizione | INGRESSO, SALONE, 3 CAMERE, CUCINOTTO, BAGNO, BALCONE (10 MQ COMM.), POSTO AUTO SCOPERTO |
| Mq. coperti comm. | 110 |
| Mq. scoperti comm. | 0 |
| Tipologia | Abitativo - Appartamento |
| Prezzo Vendita | € 143.000,00 |
| Classe Energetica | G |
| Annuncio | QUADRILOCALE – OSTERIA NUOVA Osteria Nuova, in contesto residenziale vicina a tutti i principali servizi, proponiamo in vendita quadrilocale all’interno di una piccola palazzina di sole 4 unità abitative. L’ immobile è situato al piano primo e ricopre una superficie interna lorda di 110 mq ed è così composta: zona living con attiguo angolo cottura ed affaccio su balcone, 3 camere matrimoniali di cui una con terrazzino, comodo bagno con doccia. La soluzione è caratterizzata da 3 lati di affaccio liberi e ampie vetrate che conferiscono agli ambienti luminosità. Completa la proprietà posto auto scoperto all’interno della corte condominiale. In posizione ottimale perché vicina a tutti i principali servizi, supermercati, scuola elementare e materna. Stazione di Cesano: 7 minuti (4Km ) Lago di Bracciano ( Anguillara): 7 minuti di auto Lago di Martignano: 15 minuti di auto (12km) Fregene /Maccarese: 30 minuti (30 km) |
| Planimetria |
Planimetria 1 |
|---|
